Industrial Threaded Products
Brackets Fig. 800
(631)665-9300

product

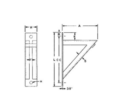
Light Welded Bracket (Made with Angle) – Fig. 800

For more product information please call (631) 665-9300
Diagram Notes

There are currently no diagram notes for this product.

Material

Carbon steel, also available in 304 and 316 stainless steel.

Finish

Plain, electro-galvanized, hot-dip galvanized or painted.

Service

Recommended for the support of pipe loads up to 750 lbs Constructed of facing angle iron with 1" space. The bracket provides maximum lateral adjustment when carrying or suspending pipe.

Approvals

Complies with Federal Specification WW-H-171-E (Type# 33), and Manufacturers' Standardization Society MSS SP 58 (Type#31).

Ordering

Specify size number, figure number and finish.

Notes

Stainless steel dimensions may change due to availability of stainless steel angle.

53d7dd1779814bcf76812581_domestic_icons_03.jpg
  • Size No.
    0
    1
    2
  • C-C
    11 1/2
    15 1/2
    21 1/2
  • A
    9
    13
    19
  • E
    2
    2
    2
  • H
    13/16
    13/16
    13/16
  • B
    3/4
    3/4
    3/4
  • L
    13
    17
    23
  • Angle Size S
    1 x 1 x 3/16
    1 x 1 x 3/16
    1 x 1 x 3/16
  • W
    3
    3
    3
  • Wgt Each (lbs)
    6.900
    10.11
    13.70